首頁 > 房屋出售 > 誠昱/西港現代全新未住透天厝
第一房屋仲介 - 誠昱/西港現代全新未住透天厝

誠昱/西港現代全新未住透天厝

透天/別墅      1320萬

系統編號

物件區域
723台南市西港區

物件地址
大竹林

地坪
28.5 坪

總建坪
48.24 坪

室內坪數
48.24 坪

主建物坪
43.62 坪

附屬建物坪數
4.62 坪

車位
車庫    

總樓層
3 樓

位於樓層
1~3 樓

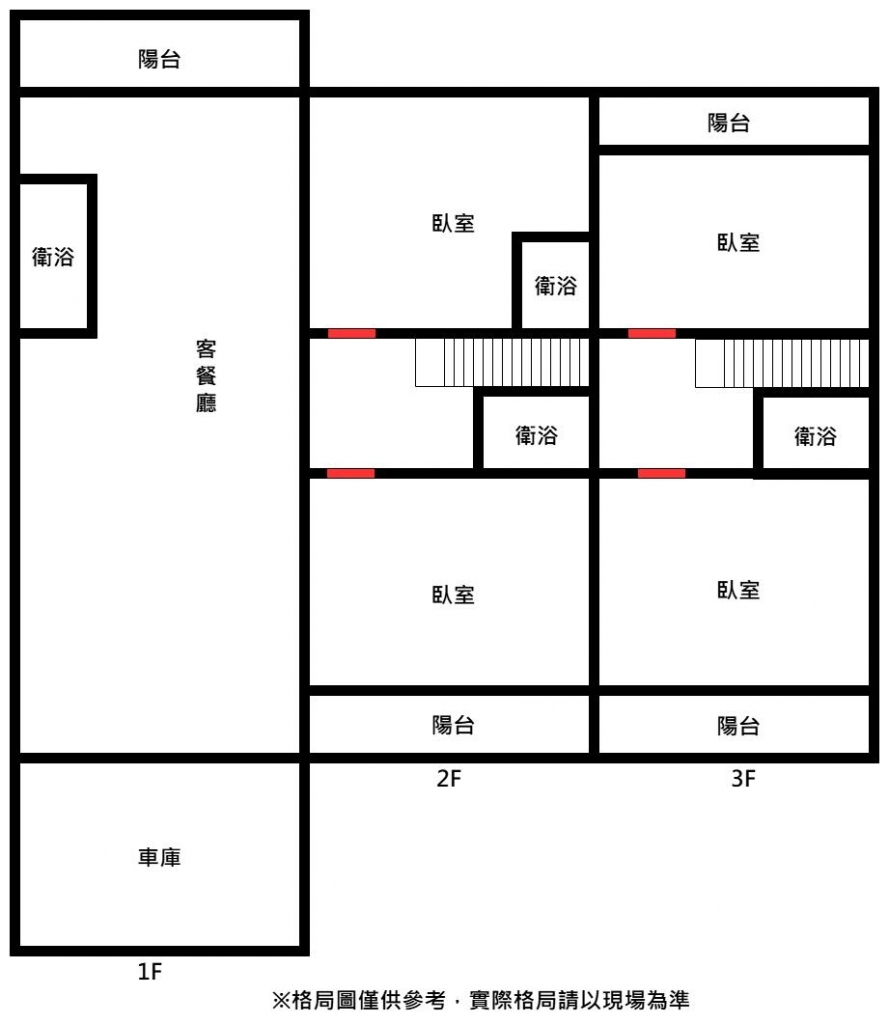
格局
4房2廳4衛4陽台

房屋座向
座西北朝東南

建物結構
鋼筋混凝土(RC)

建築完工
2025年 屋齡約1年

臨路寬度
約6 米路

特色說明
(1).環境超然.湛藍天空.交通四通八達.微風吹拂
(2).晨昏灑灑水.大地坪.室內視野佳.與大自然為伍
(3).鄉村農地.老狗.老地.老友.天南地北好住處
(4).配備完全.不積水.優雅之地.採買方便
(5)W寬約4.3米*深度21米.臨路6米

※以上資訊如有記載錯誤,一律依謄本登記簿為準

 - 誠昱/西港現代全新未住透天厝
 - 誠昱/西港現代全新未住透天厝
 - 誠昱/西港現代全新未住透天厝
 - 誠昱/西港現代全新未住透天厝
 - 誠昱/西港現代全新未住透天厝
 - 誠昱/西港現代全新未住透天厝
 - 誠昱/西港現代全新未住透天厝
 - 誠昱/西港現代全新未住透天厝
 - 誠昱/西港現代全新未住透天厝
 - 誠昱/西港現代全新未住透天厝
 - 誠昱/西港現代全新未住透天厝
 - 誠昱/西港現代全新未住透天厝
推薦物件...

誠昱/仁德保安可隔孝親整.

誠昱/仁德保安可隔孝親整.
1188 萬

誠昱/後甲商圈明星學區4.

誠昱/後甲商圈明星學區4.
888 萬

誠昱/南科三期旁優質都內.

誠昱/南科三期旁優質都內.
945 萬

誠昱/山上水道博物館建地.

誠昱/山上水道博物館建地.
4360 萬

誠昱/大同路整新4房車墅

誠昱/大同路整新4房車墅
1398 萬

誠昱/台糖86虎山新建農.

誠昱/台糖86虎山新建農.
1680 萬

誠昱/近南科全新雙併車墅.

誠昱/近南科全新雙併車墅.
2580 萬

誠昱/南科車站邊間孝親車.

誠昱/南科車站邊間孝親車.
1888 萬


更多..
地圖
分享到臉書